Newcastle’s Commercial Property Specialists
Floor Area: 290 - 900 m2

For Lease

EOI - PRIME LEASING OPPORTUNITIES

By Expression of Interest

25 Melbourne Street, East Maitland

Description

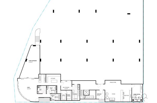
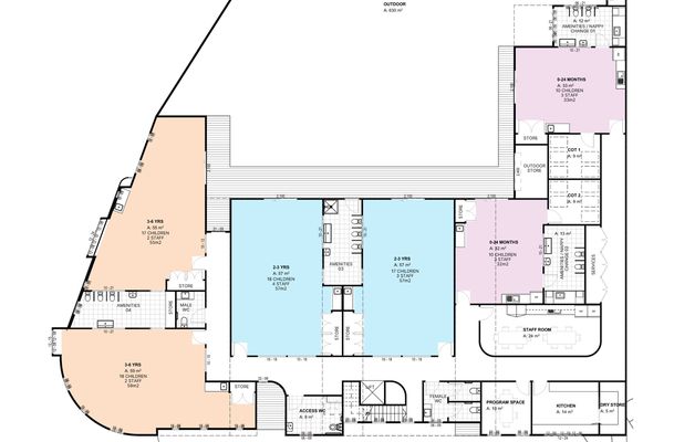
3 purpose built concepts in a high profile corner location now open for Expressions of Interest.

Option 1 - Three adjoining retail / warehouse units of 290m² (approx) each (inclusive of a 94m² mezzanine area) with a combined total of 870m² (approx). Each unit has access to a loading dock, large roller door, glass shop front entry and great exposure from being on the corner of two arterial roads. Parking for approximately 15 vehicles.

Option 2 - Designed to accommodate a Medical Centre. This concept allows for a net lettable area of 477m² (approx) all on one level which could house approximately a dozen consulting rooms, large reception and waiting area, staff room and amenities. Parking for approximately 17 vehicles.

Option 3 - 90 placement Childcare facility of approximately 900m²+.

25 Melbourne Street, East Maitland 25 Melbourne Street, East Maitland 25 Melbourne Street, East Maitland

Location

© 2023 - 2025 | Dowling Commercial , All Rights Reserved | Privacy Policy. Powered by Eagle Software